Обяви 0 За нас Контакти
Продава ПАРЦЕЛ
град Благоевград, Освобождение
55 000 €
107 570.65 лв.

(144 €, 281.64 лв./m2)
Не се начислява ДДС
Коригирана в 12:28 на 22 април, 2026 год.
Обявата е посетена 312 пъти.
Площ:
383 m2
Регулация:
ДА
Ток:
ДА
Вода:
ДА

Описание на имота:


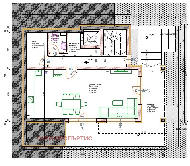
Парцел с готов проект и разрешение за строеж на модерна еднофамилна къща в кв. Освобождение, гр. Благоевград
Предлагаме за продажба урегулиран поземлен имот, разположен в един от най-предпочитаните и бързоразвиващи се квартали на Благоевград кв. Освобождение.

Парцелът е с площ от 383 кв.м и има лице към новоизградена асфалтирана улица, което осигурява лесен и удобен достъп през цялата година. За имота има изготвен архитектурен проект и издадено разрешение за строеж на модерна еднофамилна къща, което позволява незабавно стартиране на строителството без допълнителни административни процедури.

По проекта е предвидена функционална и съвременна жилищна сграда с самостоятелен двор от приблизително 280 кв.м.

Районът се отличава със спокойна жилищна среда, ново строителство и бърз достъп до централната част на града, което прави имота изключително подходящ за изграждане на комфортен семеен дом. Обява с реф. 42677
Особености
За жил.строителство
За контакт:
0896505565
Брокер:
Елена Любенова
0896505565
Още оферти от брокера: Продава | Дава под наем | Купува | Наема
Агенция:
СИТИ ПРОПЪРТИС
073 88 75 75
СИТИ ПРОПЪРТИС logo
Медал за прослужено време
В imot.bg от 2011 г.
cityproperties.imot.bg
Адрес:
област Благоевград, гр. Благоевград, бул. Св. св. Кирил и Методий 6
http://city-properties.eu
ИЗПРАТИ ЗАПИТВАНЕ
ИЗПРАТИ ЗАПИТВАНЕТО

Продава ПАРЦЕЛ
град Благоевград, Освобождение
Обява: 1r177331929816133

55 000 €
107 570.65 лв.
(144 €, 281.64 лв./m2)

Не се начислява ДДС
ЗАПАЗИ ОБЯВАТА

Местоположение: град Благоевград, Освобождение

Допълнителни данни за имотите в района и сравнение с други райони

Покажи

Период

и 5 месеца

* Средните цени са определени чрез медианна стойност